header

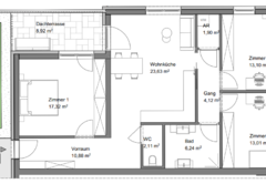
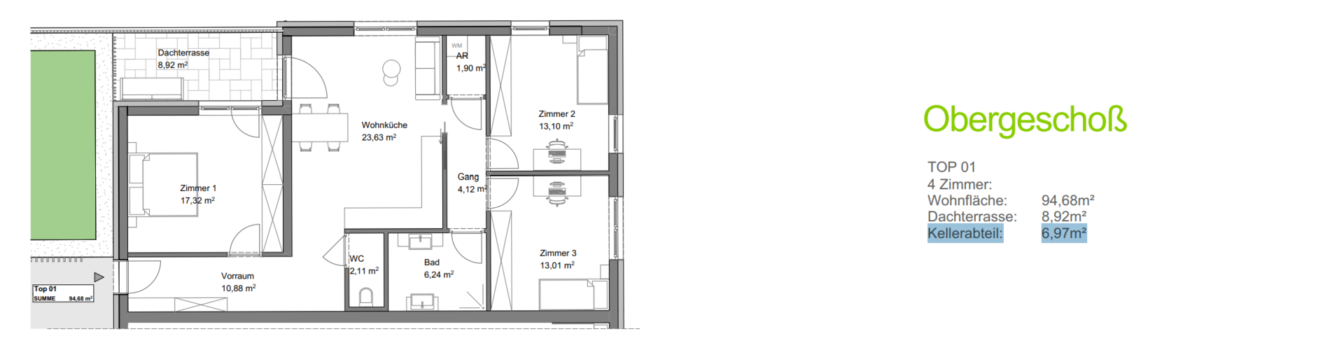
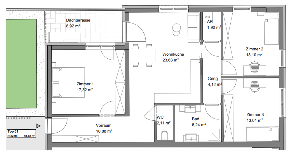
Wohnung TOP 01

4 Zimmer ; Wohnfläche: 94,68m² ; Dachterrasse: 8,92m² ; Kellerabteil: 6,97m²

Wohnung TOP 01 Obergeschoß

  • 4 Zimmer
  • Wohnfläche: 94,68m²
  • Dachterrasse: 8,92m²
  • Kellerabteil: 6,97m²


Verkaufspreis: € 388.188
Auf Anfrage senden wir Ihnen den gesonderten Netto Preis



Ich stimme der zweckgebundenen Verarbeitung meiner persönlichen Daten zu.
* Pflichtfeld


Downloads

Grazergasse - VK Wohneinheiten

Impressionen

overview
2