header

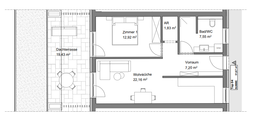
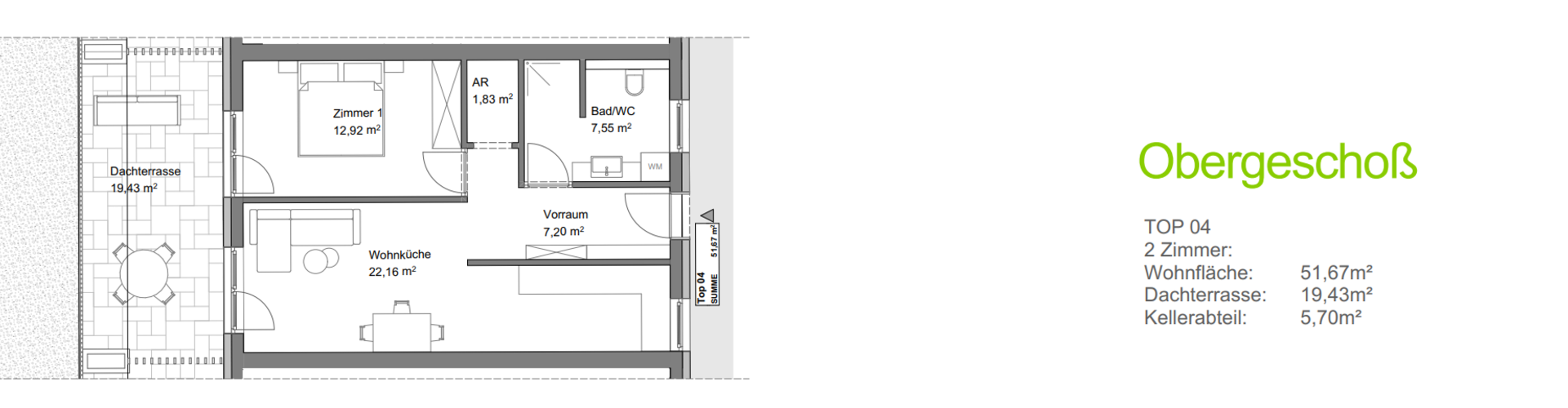
Wohnung TOP 04

2 Zimmer ; Wohnfläche: 51,67m² ; Dachterrasse: 19,43m² ; Kellerabteil: 5,70m²


Wohnung TOP 04 Obergschoß


  • 2 Zimmer
  • Wohnfläche: 51,67m²
  • Dachterrasse: 19,43m²
  • Kellerabteil: 5,70m²


Verkaufspreis: € 211.847
Auf Anfrage senden wir Ihnen den gesonderten Netto Preis



Ich stimme der zweckgebundenen Verarbeitung meiner persönlichen Daten zu.
* Pflichtfeld


Impressionen

overview
2